延岡・日向・門川でアパート・一戸建て・マンション・土地などをお探しなら和光産業へ

株式会社和光産業

お問い合わせ お電話
WAKO SDGs

建売住宅

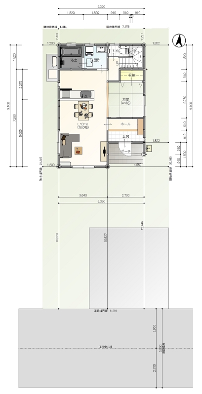
DATA

所在地 / 日向市永江町3丁目98-4

土地 / 196.67㎡(59.49坪)

延床面積 / 108.47㎡(32.81坪)

施工面積 / 110.98㎡(33.57坪)

構造 / 木造スレート葺2階建

築年 / 令和8年2月完成

交通 / <ぷらっとバス>江良町2丁目バス停徒歩3分

学校区 / 日知屋東小・富島中

備考 / 和光産業オリジナルブランド【Plus】

一覧に戻る