延岡・日向・門川でアパート・一戸建て・マンション・土地などをお探しなら和光産業へ

株式会社和光産業

お問い合わせ お電話
WAKO SDGs

建売住宅

DATA

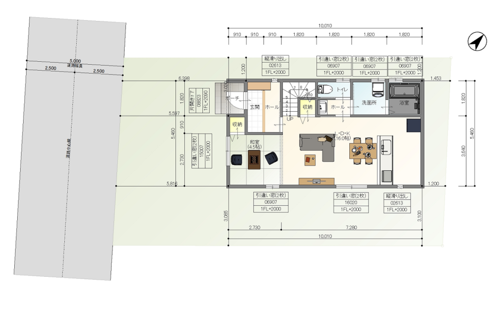
所在地 / 延岡市大貫町6丁目1893番地5

土地 / 165.73㎡(50.13坪)

延床面積 / 107.64㎡(32.56坪)

施工面積 / 109.3㎡(33.06坪)

構造 / 木造スレート葺2階建

築年 / 令和8年4月完成

交通 / 〈バス停〉大貫中区公民館前まで600m 徒歩8分

学校区 / 延岡小学校/岡富中学校

備考 / 和光産業オリジナルブランド【Plus】

一覧に戻る