延岡・日向・門川でアパート・一戸建て・マンション・土地などをお探しなら和光産業へ

株式会社和光産業

お問い合わせ お電話
WAKO SDGs

リフレッシュ住宅

DATA

※こちらは商談中の物件です

所在地 / 32.418566, 131.649004

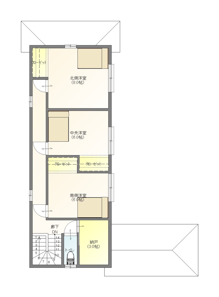
土地 / 184.42㎡(55.78坪)※公簿

建物面積 / 126.69㎡(38.32坪)※公簿

構造 / 木造合金メッキ鋼板ぶき2階建

築年 / 令和5年11月完成(築2年)

学校区 / 日知屋東小・富島中

リフォーム箇所 / 壁クロス貼り替え(一部)・照明器具(一部交換)・ハウスクリーニング・玄関鍵交換

一覧に戻る