延岡・日向・門川でアパート・一戸建て・マンション・土地などをお探しなら和光産業へ

株式会社和光産業

お問い合わせ お電話
WAKO SDGs

建売住宅

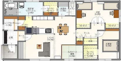
DATA

所在地 / 日向市大字財光寺11-4

土地 / 263.23㎡(79.62坪)

延床面積 / 102.68㎡(31.06坪)

施工面積 / 105.99㎡(32.06坪)

構造 / 木造コロニアル葺平屋建て

築年 / 令和7年10月完成

交通 / 財光寺駅まで徒歩11分

学校区 / 財光寺南小学校、財光寺中学校

備考 /

一覧に戻る